|
73,2 / 30,2 / 13,2 кв.м., участок 5 сот.
|
Стоимость объекта:
6 900 000 р.
|
|
|
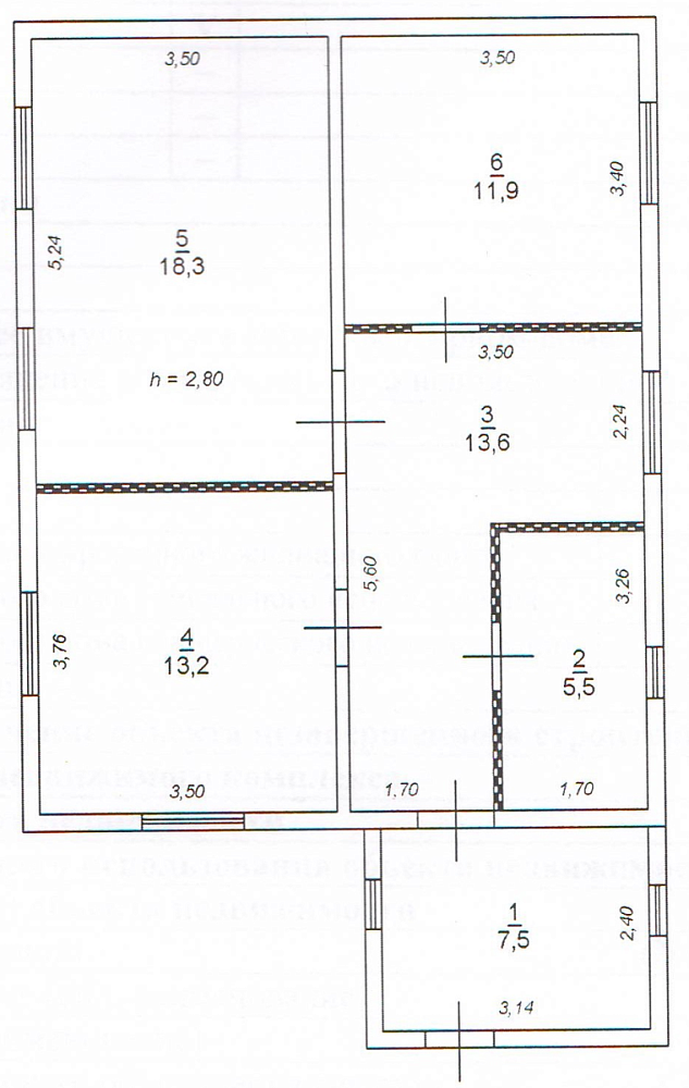
На чистой срочной продаже, отдельно-стоящий, жилой дом (с возможностью прописки), 2020 года постройки, каркасный, теплый, в хорошем состоянии, окна ПВХ, натяжные потолки, высота 2,8 м, две комнаты, изолированные, большая кухня, выделено место под санузел, все подготовлено для подключения центрального зимнего водопровода, оплачено, работы на заключительном этапе, коридор, прихожая, отопление газовое, алюминиевые радиаторы, счетчики воды и газа, выгребная яма. Мансардная крыша позволит новому хозяину увеличить полезную площадь дома. Парковочное место для автомобиля, летняя кухня, сарай, 5,0 соток земли в собственности. Мало земли? Хотелось бы иметь свой огород? За дополнительную плату можем предложить соседний участок площадью 5,36 соток, на котором имеется колодец для полива, посадки, - клубника, малина, смородина, вишня, яблоня, ирга. В СНТ практикуется зимнее проживание, аллеи очищают от снега, соседи живут круглый год. Специалист АН "Держава" покажет Вам дом в удобное для Вас время. Приятного Вам просмотра! Этот объект недвижимости можно приобрести по ипотечному кредиту! Полное юридическое сопровождение сделки, подбор варианта, помощь в оформлении ипотеки. Выгодная ипотека для Вас через нас!!!
|
||
Фотографии объекта:
Подробно: |
На карте города: |
||||||||||||||||||||
|
загрузка карты... |
Контакты риэлтора: 8-913-633-69-69
Поделиться:






















