|
77,6 / 43 / 12 кв.м., участок 13,42 сот.
|
Стоимость объекта:
5 400 000 р.
|
|
|
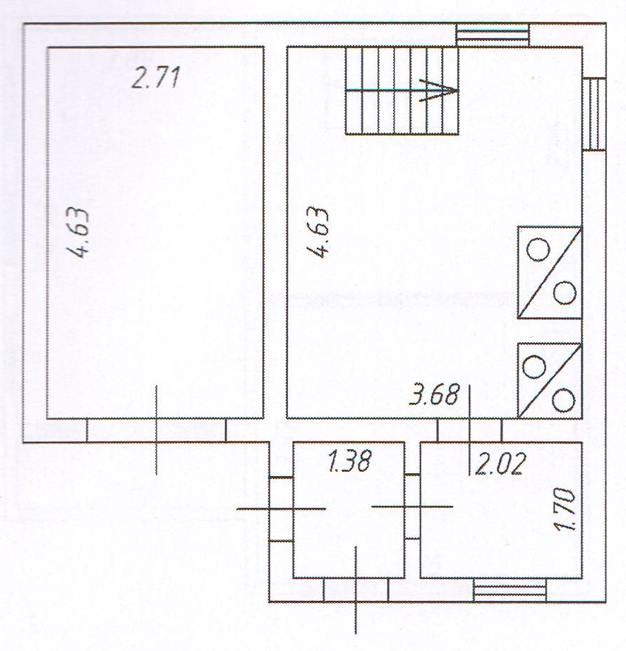
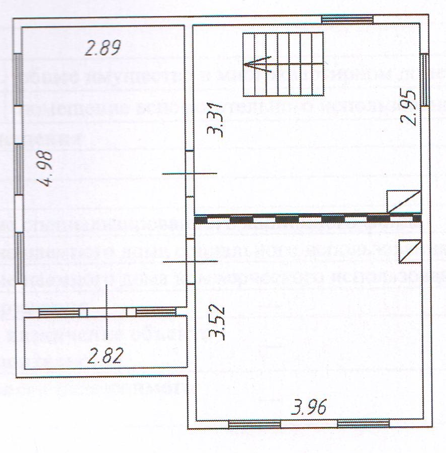
На чистой срочной продаже, в 23-х км от города, по Черлакскому тракту, садовый дом, с возможностью оформления в «жилой» и перспективой зимнего проживания, пропиской, на территории СНТ «Тепличный-1» филиал № 2, 2-х этажный, кирпичный, в хорошем состоянии. На первом этаже располагаются: гостиная и гараж. На втором этаже, - три комнаты и балкон. Печное отопление, камин, электричество на 15 кВт, летний водопровод функционирует без перерывов. Кирпичный хозблок включает в себя: кухню, душевую (водонагреватель на 50 л) и баню. Большая веранда и мангальная зона. В СНТ решаются вопросы по газификации и подведению городской питьевой воды. Парковочное место на два автомобиля. 13,42 соток земли в собственности. Земля плодородная, ухоженная. Сосны, ели, туи и можжевельник украшают территорию участка. В СНТ практикуется зимнее проживание, соседи живут круглый год. Специалист АН "Держава" покажет Вам дом в удобное для Вас время. Приятного Вам просмотра! Этот объект недвижимости можно приобрести по ипотечному кредиту! Полное юридическое сопровождение сделки, подбор варианта, помощь в оформлении ипотеки. Выгодная ипотека для Вас через нас!!!
|
||
Фотографии объекта:
Подробно: |
На карте города: |
||||||||||||||||||
|
загрузка карты... |
Контакты риэлтора: 8-913-633-69-69
Поделиться:




















